

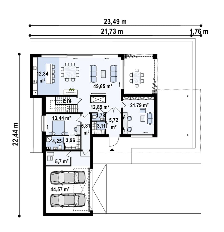
Namo Projektas M 958








Prieškambaris 5,7 m²
Spinta 3,1 m²
Fojė 12,9 m²
TUALETAS 1,8 m²
- 2,7 m² / 3,0 m²
Biblioteka 21,8 m²
Svetainė+valgomasis 49,7 m²
Virtuvė 12,3 m²
Fojė 5,8 m²
Kambarys 13,4 m²
Spinta 4,0 m²
Vonia 4,3 m²
Garažas 44,6 m²
Pagalbinė patalpa 5,7 m²
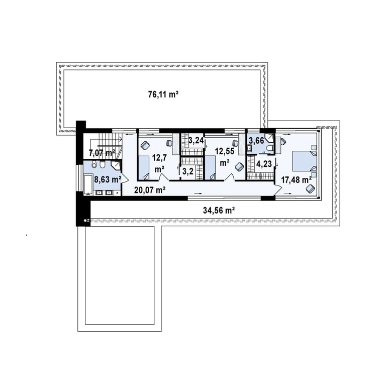
Fojė 20,1 m²
Vonia 8,6 m²
Kambarys 12,6 m²
Spinta 3,2 m²
Spinta 3,2 m²
Kambarys 12,7 m²
Vonia 3,7 m²
Spinta 4,2 m²
Kambarys 17,5 m²
Laiptai 0,0 m² / 7,1 m²
Naudingas / grynasis plotas
223,2 / 280,9 m²
Garažo zona 44,6 m²
Namo aukštis
7,65 m
Stogo nuolydžio kampas
2°
Stogo plotas
195,09 m²






