

Namo Projektas M 891








Prieškambaris 6,5 m²
Garažas 19,7 m²
Pagalbinė patalpa 4,4 m²
Koridorius 9,5 m²
Vonia 4,6 m²
Kabinetas 14,1 m²
Virtuvė 14,1 m²
Svetainė+valgomasis 41,5 m²
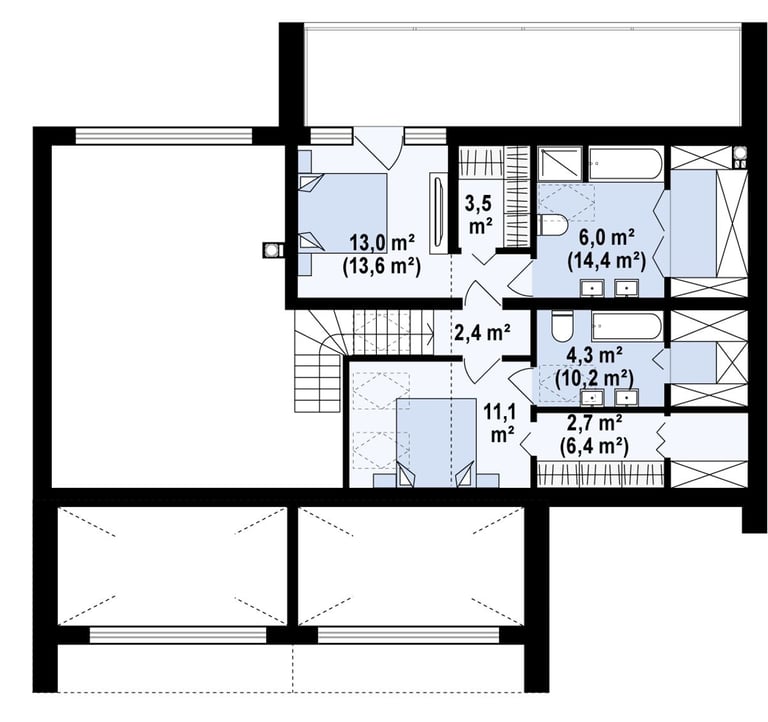
Kambarys 13,0 m²
Spinta 2,6 m²
Vonia 5,6 m²
Koridorius 2,4 m²
Kambarys 11,1 m²
Spinta 2,4 m² / 6,9 m²
Vonia 3,8 m² / 10,9 m²
Kambarys 12,7 m² / 13,6 m²
Vonia 5,4 m² / 15,4 m²
Spinta 3,5 m²
Laiptai 5,6 m²
Naudingas / grynasis plotas
152,2 / 204,8 m²
Garažo zona
19,7 m²
Namo aukštis
8,1 m
Stogo nuolydžio kampas
30°
Stogo plotas
247,56 m²




