

Namo Projektas M 528








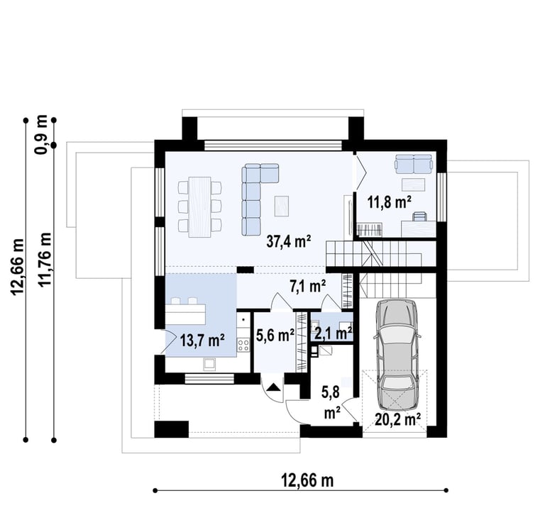
Prieškambaris 5,6 m²
Koridorius 7,1 m²
Virtuvė 13,7 m²
Svetainė+valgomasis 37,4 m²
Kabinetas 11,8 m²
Tualetas 2,1 m²
Pagalbinė patalpa 5,8 m²
Garažas 20,2 m²
Koridorius 6,6 m²
Kambarys 14,1 m² / 17,0 m²
Vonia 5,6 m² / 6,7 m²
Kambarys 13,6 m² / 15,9 m²
Kambarys 12,2 m² / 14,6 m²
Spinta 5,0 m² / 6,3 m²
Vonia 7,8 m² / 10,5 m²
Naudingas / grynasis plotas
142,4 / 181,1 m²
Garažo zona
20,2 m²
Namo aukštis
8,23 m
Stogo nuolydžio kampas
35°
Stogo plotas
168,22 m²






