

Namo Projektas M 339








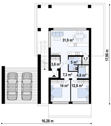
Prieškambaris 3,6 m²
Fojė 7,3 m²
Vonia 4,6 m²
P.p.+skalbykla 5,0 m²
Sandėliukas 1,7 m²
Svetainė+virtuvė 31,9 m²
Kambarys 12,8 m²
Kambarys 14,0 m²
Prieškambaris 3,8 m²
Fojė 7,7 m²
Skalbykla 3,6 m²
Sandėliukas 2,9 m²
Vonia 4,6 m²
Svetainė+virtuvė 31,3 m²
Kambarys 14,5 m²
Kambarys 13,2 m²
Vonia 3,3 m²
Terasa 30,9 m²
Naudingas / grynasis plotas
165,7 m²
Namo aukštis
7,25 m
Stogo nuolydžio kampas
2°
Stogo plotas
142,64 m²






